730 High Street

$475,000
730 High Street, Madison, NH 03875

Open House

730 High Street

730 High Street

$475,000

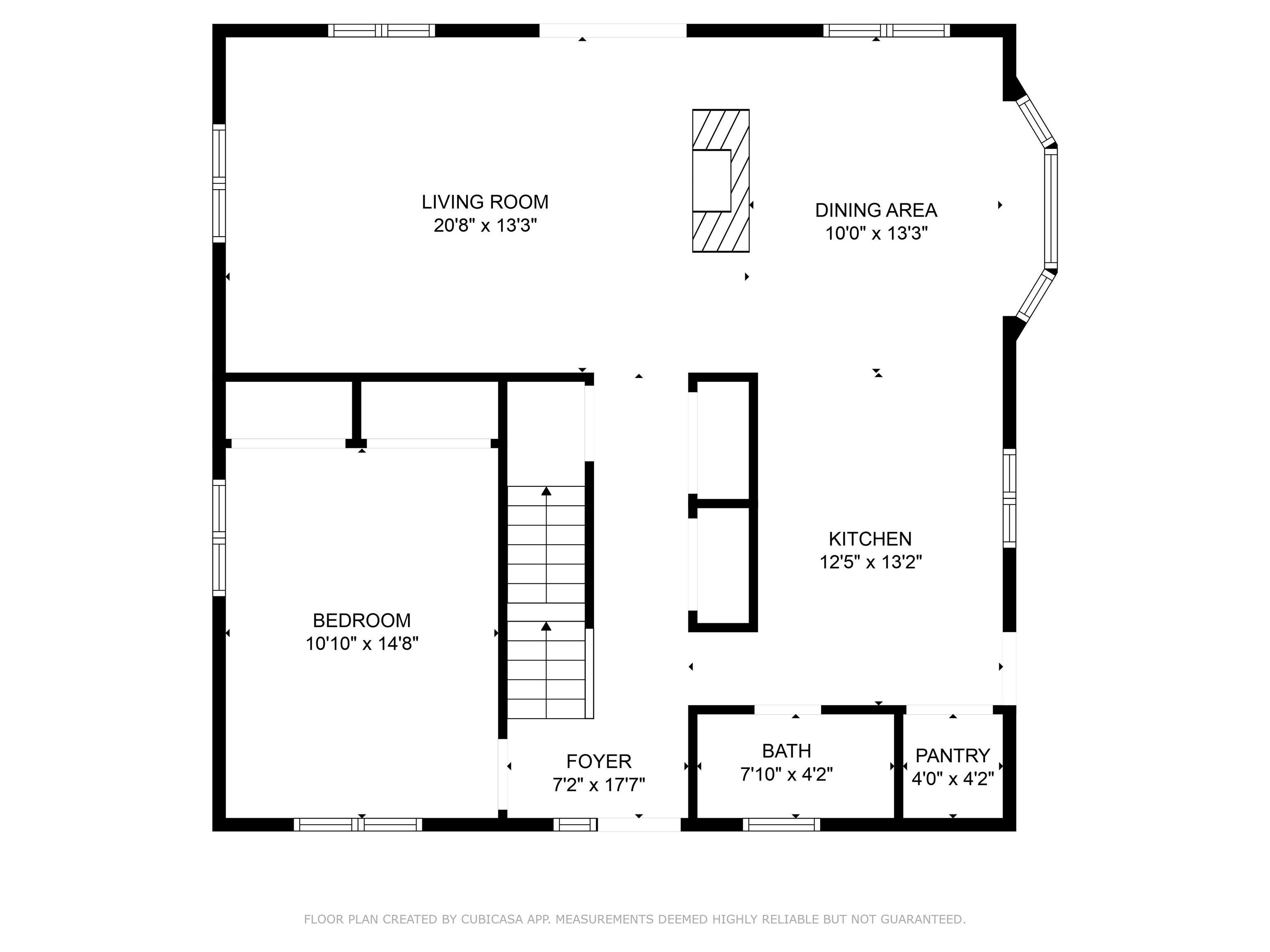
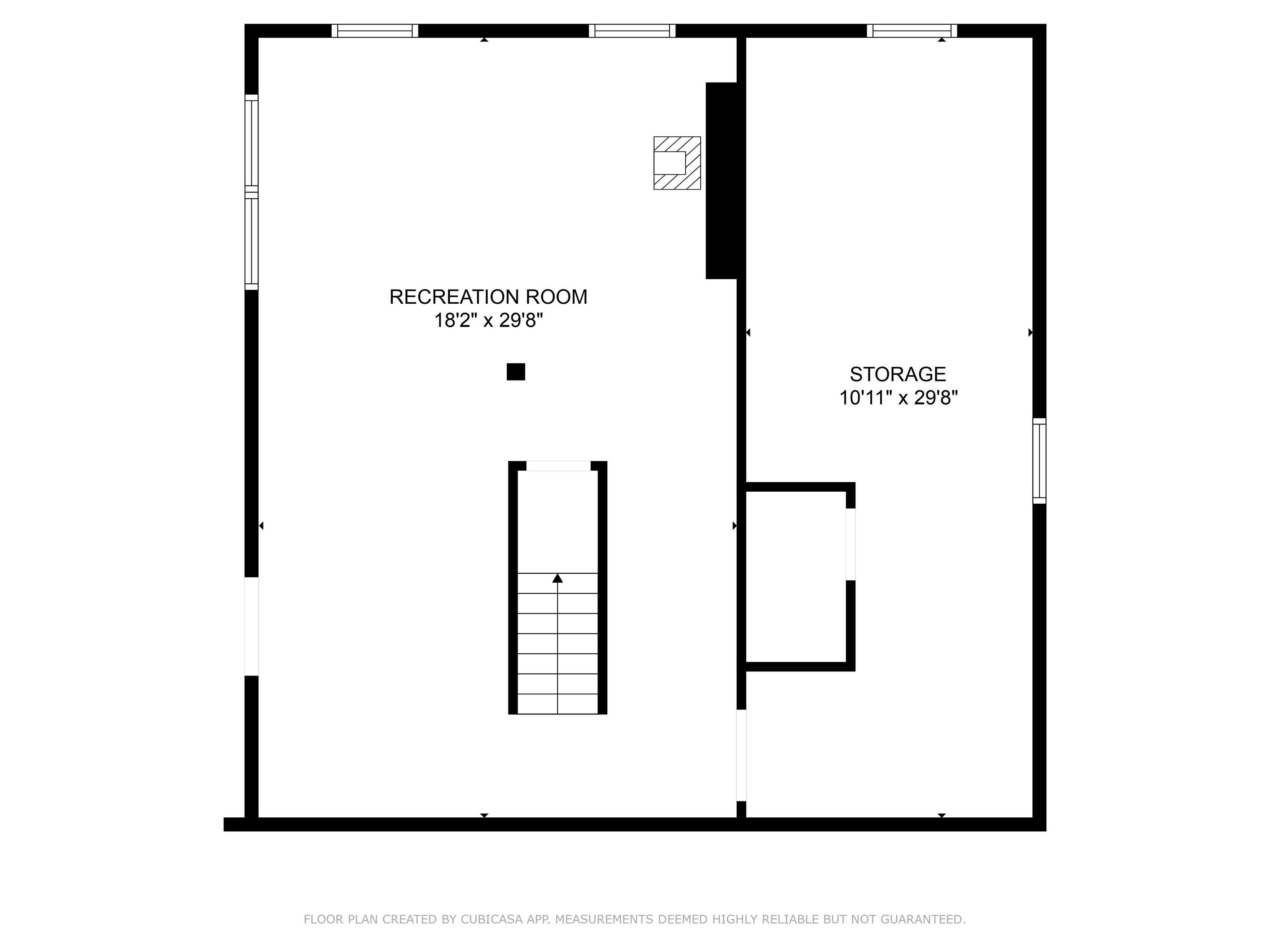
Escape to your own private 5 acre retreat along the hillsides of Madison! This home welcomes you with expertly curated native perennial gardens that include a babbling fish pond for added serenity. This home was designed with 1st floor living in mind. The galley style kitchen is spacious, with a walk-in pantry and updated stainless steel appliances. The generously sized dining room and living room, divided by a floor-to-ceiling brick chimney, have new vinyl plank flooring and feature a cathedral ceiling. A pellet fireplace takes the edge off on cool nights or you can head out back through new French Doors to your natural stone fire pit. The formal front entry to the home boasts loads of closet space, and a 3/4 bath on the first floor lends easy access for the bedroom-making 1 floor living a breeze! Head upstairs where you will find a large loft space overlooking the living area below. The primary bedroom is bright and through the slider, has a balcony deck where you can sip your morning coffee and just listen to the birds. The bathroom includes updated hardware, new skylight, and a new frameless shower door. Another bedroom also enjoys a large slider and access to the deck. Head into the basement where you will find a recreation room with woodstove and a utility room with laundry. Whether you're entertaining on the deck outside, relaxing in your gazebo or hot tub, or following the meandering paths through the gardens, you're sure to find so many things to love about this home!
Lee Ann O'Hara
Lee Ann O'Hara Contact

Features & Amenities

Interior

Total Bedrooms 2
Total Bathrooms 2
Full Bathrooms 1
Three Quarter Bathrooms 1
Laundry Room Basement Laundry
Flooring Carpet, Laminate, Vinyl, Vinyl Plank
Fireplace 1 Fireplace
Appliances Dishwasher, Dryer, Microwave, Electric Range, Refrigerator, Washer, Water Heater off Boiler
Other Interior Features Indoor Storage, Central Vacuum, Cathedral Ceiling

Exterior

Stories 2
Garage Space 2.0
ROOF Asphalt Shingle
Lot Features Landscaped, Interior Lot
Heat type Oil, Pellet Stove, Wood, Hot Water, Multi Zone, Wood Stove
Air Conditioning None
Sewer Concrete, Leach Field, Existing Leach Field, Leach Field On-Site, On-Site Septic Exists, Private

Area & Lot

Status Sold
LIVING SPACE 2,176 Sq.Ft.
TOTAL AREA 2,560 Sq.Ft.
LOT SIZE 5.2 Acres
MLS® ID 5049059
Type Residential
Year Built 1993
Neighborhood Madison
Water Frontage Lake, Municipal Residents Only
View Description Rural
ELEMENTARY SCHOOL Madison Elementary School
MIDDLE SCHOOL A. Crosby Kennett Middle Sch
HIGH SCHOOL A. Crosby Kennett Sr. High
School District SAU #13

Financial

SALES PRICE $475,000
REAL ESTATE TAXES $3,676/yr
Madison

Madison

Read more

Work With Us

Your key to real estate success lies with The Pinkham team! Our skilled and diverse group of professionals, licensed in both NH and Maine, work in perfect harmony. With a strong emphasis on communication, collaboration, and continuous learning, we strive to surpass expectations. Partner with us today and unlock the true potential of your property endeavors.

CONTACT US