Lot 2 Technology Lane

$115,000
Lot 2 Technology Lane, Conway, NH 03818

Open House

Lot 2 Technology Lane

Lot 2 Technology Lane

$115,000

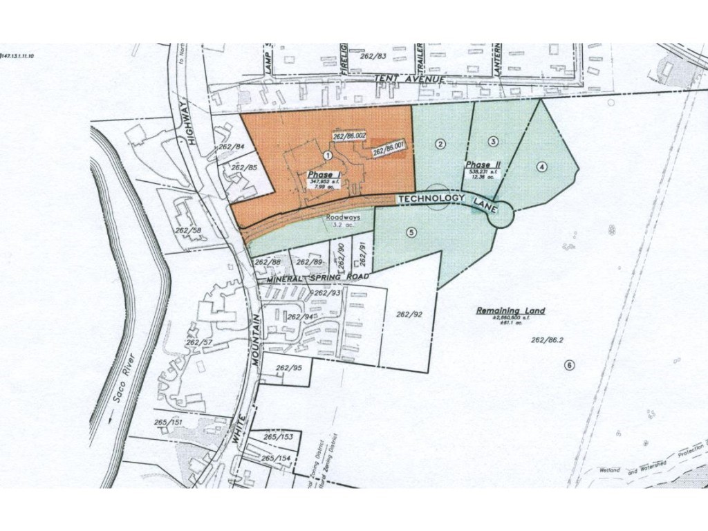
NORTHERN NEW HAMPSHIRE'S NEWEST AND MOST COMPLETE BUSINESS AND LIGHT USE INDUSTRIAL PARK provides an entrepreneur the ideal environment to meet and overcome the economic challenges of today. With on-site training and educational opportunities at Granite State College, conference and training facilities, technological resources and personnel available to help solve IT issues, the Mount Washington Valley Economic Council has created a business campus that rivals anything in northern New England. Building sites include all necessary infrastructure, including access to municipal utilities and IT/communication connections. Financing assistance available for forward thinking entrepreneur and established business looking to build from ground up. There are four lots available in Phase 2.

 

Buyer Agent Compensation: 2.5%

Greydon Turner
Greydon Turner Contact

Features & Amenities

Exterior

Sewer Public

Area & Lot

Status Sold
LOT SIZE 2.23 Acres
MLS® ID 4509080
Type Commercial
Year Built 2013
Neighborhood Conway

Financial

SALES PRICE $115,000
Buyer Agency Compensation 2.5%
REAL ESTATE TAXES $2,157/yr
Conway

Conway

Read more

Work With Us

Your key to real estate success lies with The Pinkham team! Our skilled and diverse group of professionals, licensed in both NH and Maine, work in perfect harmony. With a strong emphasis on communication, collaboration, and continuous learning, we strive to surpass expectations. Partner with us today and unlock the true potential of your property endeavors.

CONTACT US